Estimating Edge’s team of experienced construction professionals and software engineers have developed the industry’s smartest takeoff and estimating software solutions for competitive estimates.
Don’t just estimate faster. Estimate better.®
- /
- /
- /
Deduct Not Assigned to an Area
An error message that you could receiving when trying to activate an EDGE scenario to become an EDGE On Site project.
Note: If you are not comfortable with activating a bid for EDGE On Site check out this video.
The error messages reads: “Unable to assign deduct quantity to any area, make sure the deduct shape at least touching or intersecting an area. Error occurred on deduct not assigned to shape: windows.”
Note: Windows is the name of the condition in which the error is occurring.

Problem:
Shapes are everything in EDGE On Site. The issue is EDGE On Site is looking at these deduct, the negative quantity, and it’s trying to understand what area or what shape this is being deducted from. Since we have our deducts drawn as a separate condition here, windows from a panel.
The reason an estimator might take off an estimate this way is because it can be tracked separately or just to break it apart visually for costing purposes. For EDGE On Site this is not plausible because EDGE On Site needs to know what shape these deducts are applied to which is why the error message read that it couldn’t assign this deduct quantity to any shape.
Solution:
Takeoff the deducts inside of the area of shape, which The EDGE allows you to do. You have the ability to either create another condition or go into your area condition. Once the deducts are drawn inside of our area shape the bid will be able to be activated in EDGE On Site because EDGE On Site will see the parent shape and understand, which area is getting deducted from.
- Open up The EDGE, and locate the scenario which you are trying to active.

- Check out the Scenario.

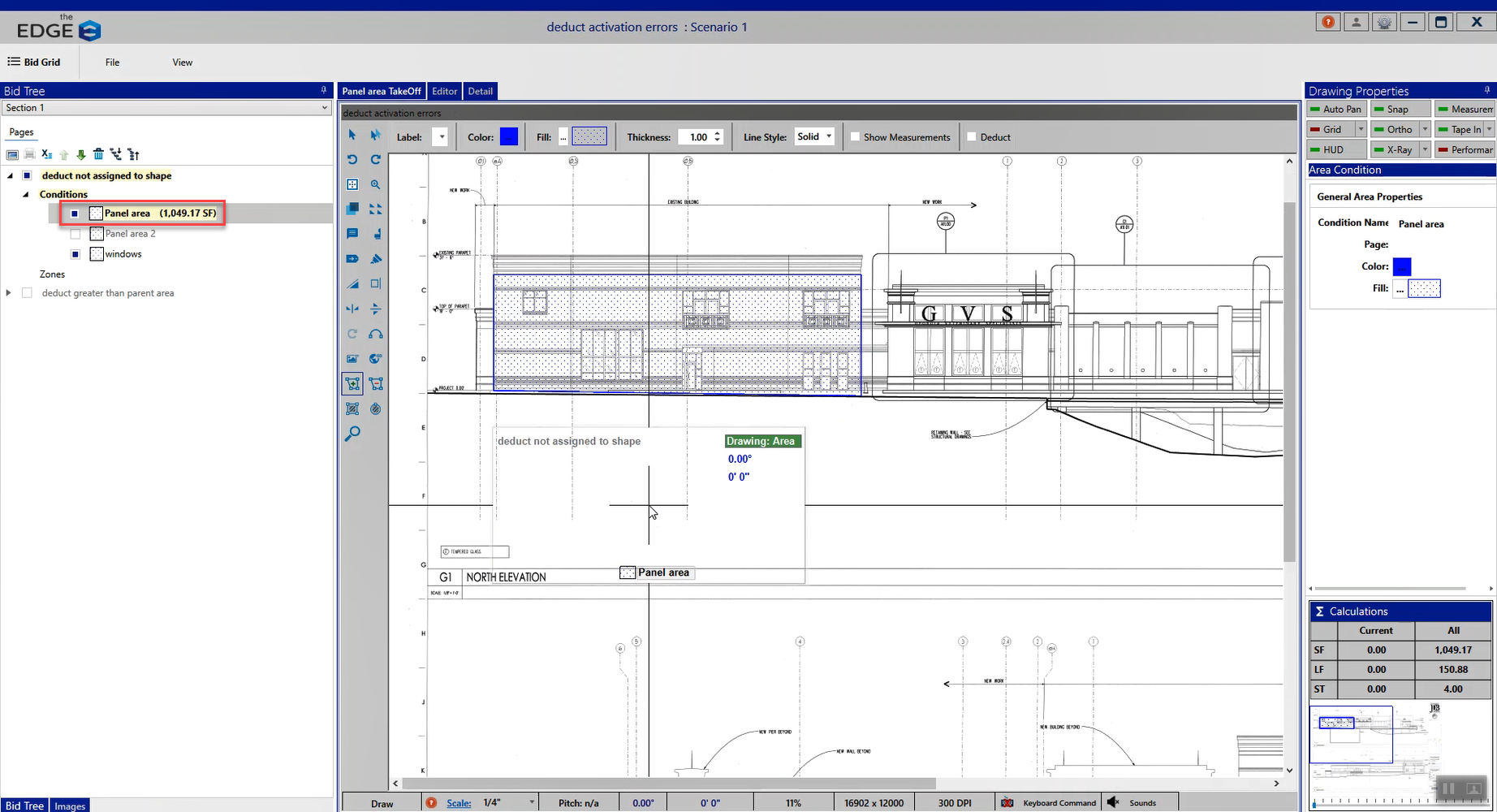
- Let’s see if we can find that Windows condition and see what the error message might be referring to. Maneuver to the pages, there is only one turned on so it must be within here and here is that Windows condition.

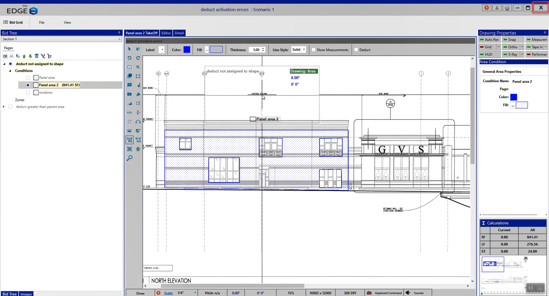
- Double click on the page to proceed to the conditions. There is another condition here titled “Panel area” in our windows condition has negative quantity.

- Click Takeoff to visually see what the error message is telling us.

- Click on the first condition “panel area” condition.
Note: It’s a simple square foot area condition, and it’s drawn to represent the exterior wall panel area here.

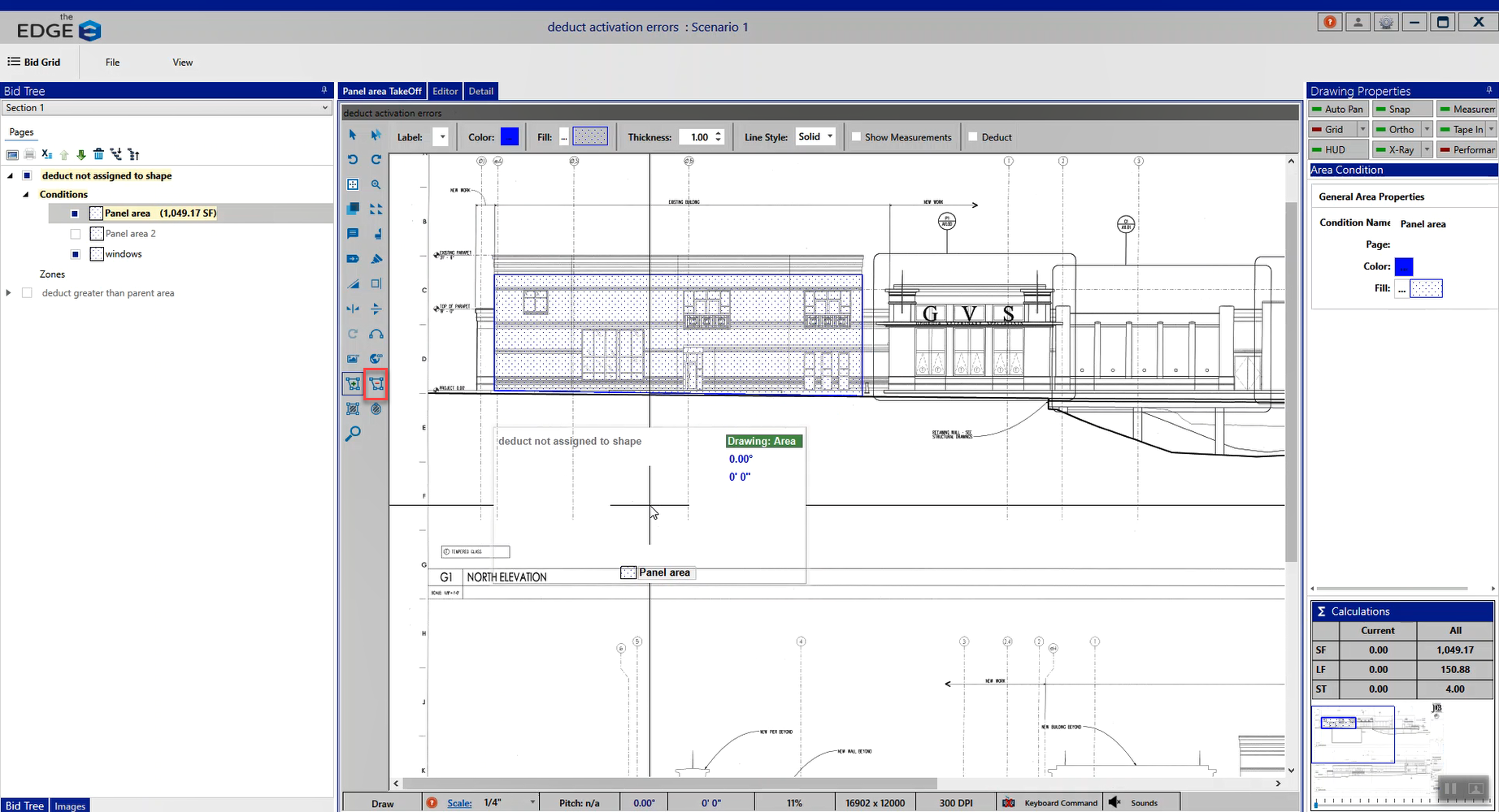
- Click on the other condition “windows” condition.
Note: This is simply a deduct, drawn without a condition. Which is why they have negative square foot quantity here.

- Click on the “panel area” condition.

- Draw the deducts inside this condition.
Note: EDGE On side will be able to tell which shape the deducts are being applied to.

- Close the Takeoff screen.

- Go to the Scenario breadcrumb.

- Check in the Scenario.

- Go to the Administration Portal and refresh the screen.

- Activate the Scenario.

If you get this error message you know what to look for. If you do have any further questions please feel free to reach out to technical support for assistance.